1. Accueil
  2. Achat
  3. Achat Appartement
  4. Achat Appartement CREPY EN VALOIS (60800)

Appartement F3 à vendre 3 pièces - 64,61 m2 CREPY EN VALOIS - 60

Ref : 14424

258 000 €

  • Honoraires charge vendeur
Appartement F3 à vendre - 3 pièces - 64.61 m2 - CREPY EN VALOIS - 60 - PICARDIE - Century 21 Vandôme Immobilier
Appartement F3 à vendre - 3 pièces - 64.61 m2 - CREPY EN VALOIS - 60 - PICARDIE - Century 21 Vandôme Immobilier
Appartement F3 à vendre - 3 pièces - 64.61 m2 - CREPY EN VALOIS - 60 - PICARDIE - Century 21 Vandôme Immobilier
Exclusivité
Envoyer un message
Message
Envoyer ce bien à un ami

Description

PROGRAMME IMMOBILIER LOGEMENTS NEUFS (VEFA)
A Crépy-en-Valois, le Domaine de Vanier, située à proximité des lycées et des complexes sportifs, Programme immobilier comprenant un ensemble collectif constitué de 9 logements allant du 3 à 4 pièces.
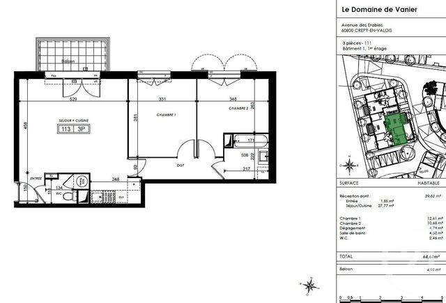
L'appartement qui vous est proposé se trouve au 1er étage et vous offre : une entrée, un séjour avec coin cuisine, deux chambres, une salle de bains, wc indépendant et un balcon.
Place de stationnement.
Livraison prévue 2ème trimestre 2027

D'autres modèles d'appartements sont disponibles ; ne pas hésiter à nous contacter.

Localisation

Laissez-nous vos coordonnées pour obtenir la localisation

Envoyer

Afficher sur la carte :

Demander la localisation

Vue globale

  • Surface totale : 64,6 m2
  • Surface habitable : 64,6 m2
  • Type d'appartement : F3
  • Étage : 1er
  • Nombre de pièces : 3
    • Entrée (1,9 m2)
    • Séjour av coin cuisine (27,8 m2)
    • Chambre (12,6 m2)
    • Chambre (10,7 m2)
    • Salle de bains (4,5 m2)
    • WC (2,5 m2)
    • Dégagement (4,7 m2)

Équipements

Les plus

P

Parking exterieur

Général

  • Parking exterieur : 1 place(s)
  • Chauffage : Pompe à chaleur air/eau
  • Balcon

À savoir

Les performances énergétiques

Non soumis au DPE

Envoyer à un ami

Envoyer

Envoyer un message :

Envoyer

Créer votre alerte

Rappel de vos critères de recherche :

Erreur dans les critères envoyés

Limite d'alertes atteinte

Cette alerte existe déjà

Cette alerte est déjà enregistrée pour cette adresse email. Vous continuerez à recevoir les biens correspondant à vos critères.

Une erreur est survenue

Merci de réessayer ultérieurement.

Votre alerte a été créée

Vous recevrez les biens correspondant à vos critères.

logo vente privées

48h

d’avance sur
le marché

Prenez un temps d’avance sur le marché en profitant gratuitement des Ventes Privées CENTURY 21

Si ce n’est pas déjà fait, créez votre compte client pour recevoir en avant-première des biens exclusifs, réservés à nos clients pendant les 48 premières heures suivant leur commercialisation.

Nos agences proposent régulièrement des biens comme celui que vous cherchez

Ne ratez pas une opportunité, on vous alerte en priorité !

Êtes-vous actuellement propriétaire de votre bien ?
Créer une alerte
Je souhaite être alerté
Voir les biens correspondants